Syllacas House

This two storey house is located in one of the three main entrances of Dryopida Village in Kythnos. It is very close to the Saint Anna church who is the patron saint of the island. This makes the location extra vivid since all the local events take place around this area.

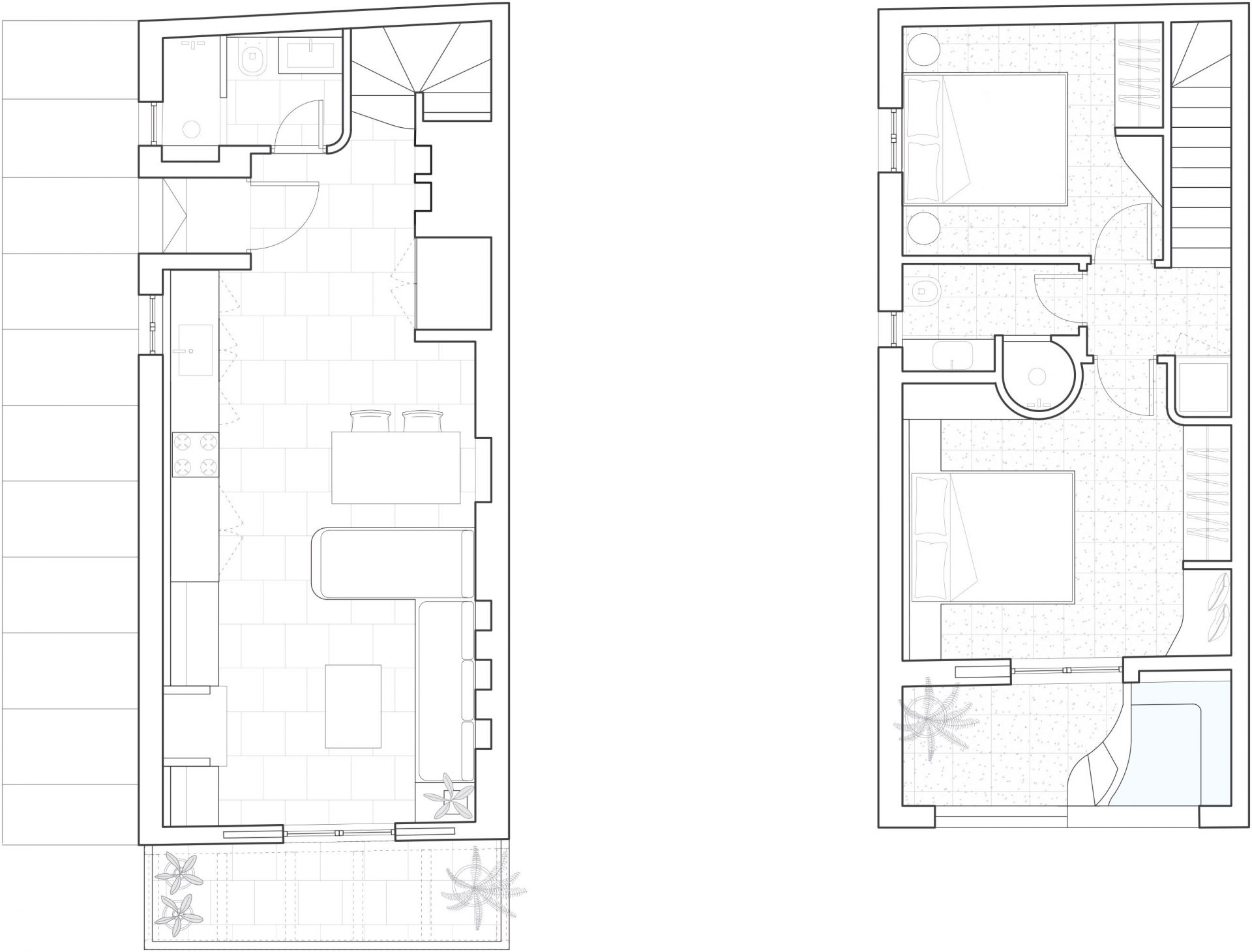
The house is about 75 sq meters in total and was designed in an existing shell from the 1960’s.

Since it was not a traditional stone house, we wanted to create a space with simple lines and quite modern aesthetics.

The house is purposed to serve both a private residence needs but also touristic ones, so we had to combine those needs in such a way that it would also make sense for both purposes to exist separately.

The ground level of the house consists of a long built linear element which hosts the kitchen and the stone fireplace. The kitchen is fully equipped in order to cover a long-term stay needs as well. The fire place was a strong design gesture since we wanted to use a large one-piece stone at the bottom of it. On the opposite side, a built “L” shaped sofa is formed which also functions as a seating bench for the dining table. Storage drawers are placed underneath the sofa. This part of the wall was re built with stone since we wanted to enhance the traditional stone craftmanship of the area but in a modern way. A small bathroom is also situated at the back of the floor next to the stair leading to the upper floor.

The space underneath the stair is being used to create a small storage space – the fridge is also hidden there – as wall some decorative recesses.The upper level of the house is consisted of two double rooms and a shared bathroom. The main bedroom is the one located in the façade of the house which opens up to a terrace that gives an amazing village view. Part of this terrace was formed into a small jacuzzi in order to also fulfil the touristic purposes the house is meant to.

The main materials used are cement paint, natural wood, natural stone, mosaic and stone tiles.

 

Photo Credits: Ioanna Fotiadou