Kamara Apartment

Renovation

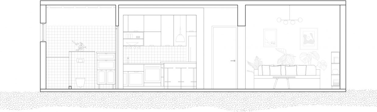
This 85 sq. meter apartment is situated in the historical area “Kamara” of Thessaloniki. The apartment was built in the 1960’s and had the typical typology of that time, which consists of strict boundaries and small rooms across a corridor. As today’s needs and aesthetics have changed, the apartment has been fully renovated creating a more flexible spatial design, allowing as well the natural light to penetrate to the whole space. The overall design is minimal and fresh, using natural materials – mainly wood – and playful colours.